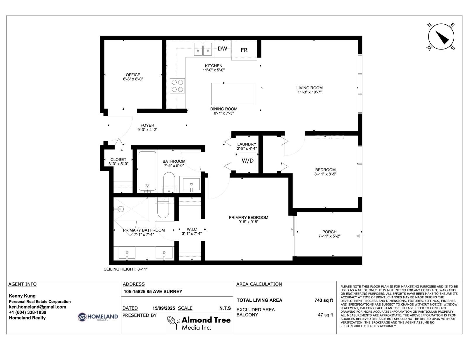
105 15825 85 Avenue Surrey, British Columbia V4N 6W9
$539,000Maintenance,
$369.44 Monthly
Maintenance,
$369.44 MonthlyWelcome to this beautifully designed, well-loved 2-beds + Den (possibly 3rd bed) and 2 full baths in the heart of Fleetwood! This gorgeous home offers a perfect blend of comfort and style. The open-concept layout maximizes space and natural light creating a spacious, warm and inviting ambiance. The modern kitchen features an island, sleek appliances and ample storage, perfect for both cooking and entertaining. Rare Ground Floor Gem with your own private access and landscaped yard. Enjoy the convenience of in-suite laundry and a prime location close to parks, schools, shopping and the upcoming Surrey Langley SkyTrain. Perfect for families, first-time buyers, or investors seeking a vibrant community with plenty of amenities. Incredible value and sensibly priced! (id:52823)
Property Details
MLS® Number | R3049912 |
Property Type | Single Family |
Neigbourhood | Johnston Heights |
Community Features | Pets Allowed With Restrictions, Rentals Allowed With Restrictions |
Structure | Playground |
Building
Bathroom Total | 2 |
Bedrooms Total | 2 |
Age | 2 Years |
Amenities | Daycare, Exercise Centre, Laundry - In Suite, Recreation Centre |
Appliances | Washer, Dryer, Refrigerator, Stove, Dishwasher, Microwave |
Architectural Style | Other |
Basement Development | Unknown |
Basement Features | Unknown |
Basement Type | None (unknown) |
Construction Style Attachment | Attached |
Fire Protection | Smoke Detectors |
Fixture | Drapes/window Coverings |
Heating Type | Baseboard Heaters |
Size Interior | 743 Ft2 |
Type | Apartment |
Utility Water | Municipal Water |
Parking
None |
Land
Acreage | No |
Landscape Features | Garden Area |
Sewer | Sanitary Sewer |
Utilities
Electricity | Available |
Water | Available |
https://www.realtor.ca/real-estate/28885086/105-15825-85-avenue-surrey