111 13880 74 Avenue Surrey, British Columbia V3W 7E6
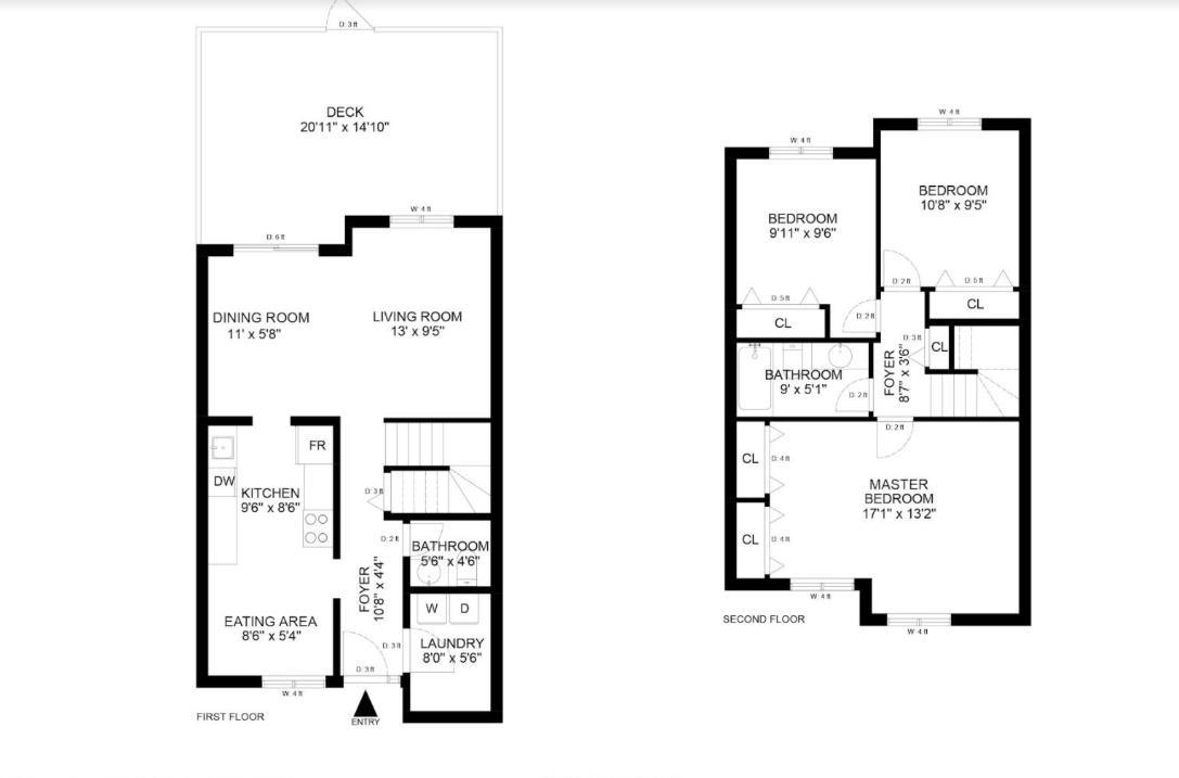
3 Bedroom
2 Bathroom
1,300 ft2
2 Level
$649,800Maintenance,
$376 Monthly
Maintenance,
$376 MonthlyWelcome to Wedgewood Estates this 2 story, 3 BR Townhouse . Great size living room with sliding door to private fenced backyard. Powder room on the main with a separate laundry and good storage area. Three bedrooms upstairs with one full bathroom. Family friendly complex close to shopping, restaurants, bus, parks and more! professionally managed with Low maint. fee of $376. and huge strata Contingency Fund(CRF) of $813,000 make it good safe investment. Easy to .show with some notice! Newer. Hot Water tank many updates just done including new paint, new doors, stairs laminate and all new floorings. (id:52823)
Property Details
MLS® Number | R3003114 |
Property Type | Single Family |
Community Features | Pets Allowed With Restrictions, Rentals Allowed |
Parking Space Total | 2 |
Structure | Playground |
Building
Bathroom Total | 2 |
Bedrooms Total | 3 |
Age | 45 Years |
Amenities | Laundry - In Suite, Racquet Courts |
Appliances | Washer, Dryer, Refrigerator, Stove, Dishwasher |
Architectural Style | 2 Level |
Basement Development | Unknown |
Basement Features | Unknown |
Basement Type | None (unknown) |
Construction Style Attachment | Attached |
Heating Fuel | Electric |
Stories Total | 2 |
Size Interior | 1,300 Ft2 |
Type | Row / Townhouse |
Utility Water | Municipal Water |
Parking
Carport |
Land
Acreage | No |
Sewer | Sanitary Sewer, Storm Sewer |
Utilities
Electricity | Available |
Water | Available |
https://www.realtor.ca/real-estate/28314125/111-13880-74-avenue-surrey