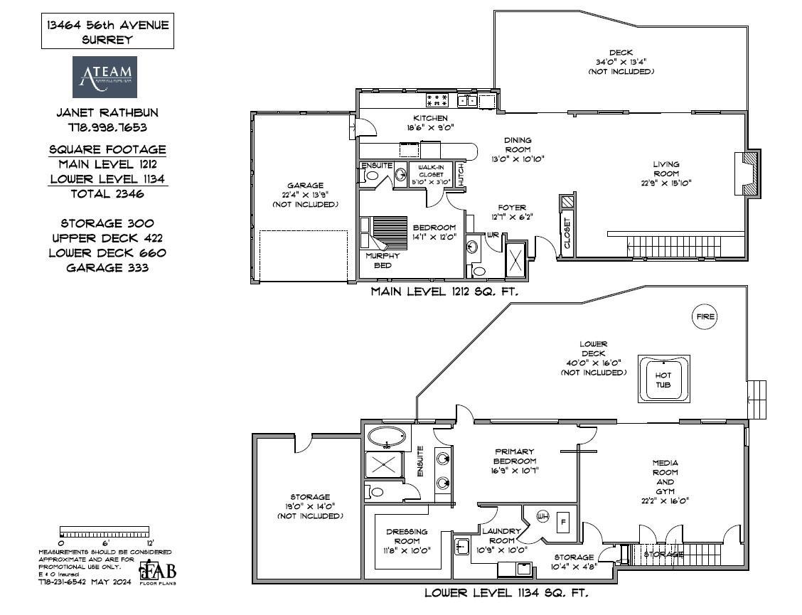
13464 56 Avenue Surrey, British Columbia V3X 2Z6
$1,798,000
PANORAMA RIDGE OASIS! Discover this exclusive, 3-bdrm sanctuary perfect for executives or retirees. Enjoy unparalleled privacy with panoramic ocean & farmland views. Designed so all principal rooms are oriented to the view. Two tiers of spacious decks feature a firepit & hot tub, ideal for unwinding with a glass of wine as you watch stunning sunsets & nature all around you. Renovated with natural elements like fir, stone, and slate, the home offers a seamless indoor-outdoor flow. The primary suite boasts a spa-inspired ensuite & a spacious walk-in dressing room. Boasting artistic landscaping with rain chains leading into planter pots, thoughtfully designed pathways, & multiple decks that maximize the use of space. High-end appliances including Thermadore 6 burner cooktop, low-maintenance yard & easy access to commuter routes, this secluded haven is the perfect blend of luxury & convenience. Experience a perpetual holiday retreat every day! (id:52823)
Property Details
MLS® Number | R3032815 |
Property Type | Single Family |
Neigbourhood | Panorama Ridge |
Parking Space Total | 4 |
View Type | Ocean View, Valley View, View Of Water |
Building
Bathroom Total | 3 |
Bedrooms Total | 3 |
Age | 57 Years |
Amenities | Whirlpool |
Appliances | Washer, Dryer, Dishwasher, Hot Tub, Oven - Built-in, Range, Refrigerator, Wine Fridge |
Architectural Style | 2 Level, Ranch |
Basement Development | Finished |
Basement Features | Separate Entrance |
Basement Type | Full (finished) |
Construction Style Attachment | Detached |
Fireplace Present | Yes |
Fireplace Total | 1 |
Fixture | Drapes/window Coverings |
Heating Fuel | Natural Gas |
Heating Type | Forced Air |
Size Interior | 2,679 Ft2 |
Type | House |
Utility Water | Municipal Water |
Parking
Garage | |
R V |
Land
Acreage | No |
Landscape Features | Sprinkler System |
Sewer | Septic Tank |
Size Irregular | 29417 |
Size Total | 29417 Sqft |
Size Total Text | 29417 Sqft |
Utilities
Electricity | Available |
Natural Gas | Available |
Water | Available |
https://www.realtor.ca/real-estate/28681566/13464-56-avenue-surrey