6522 193a Street Surrey, British Columbia V4N 5P8
$1,299,900
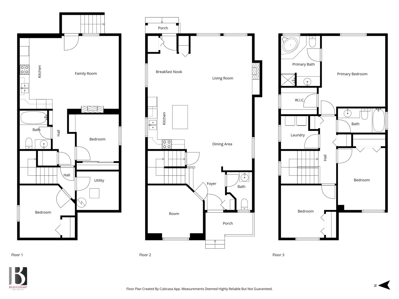
The wait is over for your 5+ BEDROOM, 2 storey w/walk out basement home in Clayton Heights. This property features a LEGAL, PERMITTED ONE BEDROOM SUITE (EZ vacant possession). Checkout the many thoughtful upgrades throughout the home: new DISHWASHER, RANGE & microwave in 2022, custom pantry pull-out shelves, new WASHER/DRYER in 2021, new high efficiency FURNACE & HEAT PUMP in 2025. The main floor plan is open to allow you to furnish your home the way you like and there is a main floor den/parlour for focus time. Check out the second bedroom in the basement that is part of the main living area...good for guests, office & more. There is a detached double garage and paved open pad off the lane. Easy access to Katzie Elementary, Starr Park, shops & transit (walk to future Clayton Station). (id:52823)
Property Details
| MLS® Number | R3052594 |
| Property Type | Single Family |
| Neigbourhood | Clayton Heights |
| Parking Space Total | 3 |
Building
| Bathroom Total | 4 |
| Bedrooms Total | 5 |
| Age | 20 Years |
| Amenities | Air Conditioning |
| Appliances | Washer, Dryer, Refrigerator, Stove, Dishwasher, Garage Door Opener, Alarm System - Roughed In, Central Vacuum - Roughed In |
| Architectural Style | 2 Level |
| Basement Development | Finished |
| Basement Features | Unknown |
| Basement Type | Full (finished) |
| Construction Style Attachment | Detached |
| Cooling Type | Air Conditioned |
| Fire Protection | Unknown |
| Fireplace Present | Yes |
| Fireplace Total | 2 |
| Heating Fuel | Natural Gas |
| Heating Type | Baseboard Heaters, Forced Air |
| Size Interior | 2,712 Ft2 |
| Type | House |
| Utility Water | Municipal Water |
Parking
| Detached Garage | |
| Garage |
Land
| Acreage | No |
| Sewer | Sanitary Sewer, Storm Sewer |
| Size Irregular | 2950 |
| Size Total | 2950 Sqft |
| Size Total Text | 2950 Sqft |
Utilities
| Electricity | Available |
| Natural Gas | Available |
| Water | Available |
https://www.realtor.ca/real-estate/28919092/6522-193a-street-surrey






























