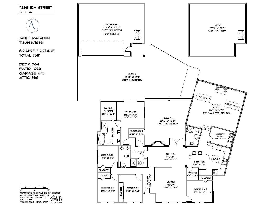
7388 112a Street Delta, British Columbia V4C 4Y2
$1,439,000
This Executive Rancher truly shows as new! Lovingly maintained & renovated w/ top-quality finishes thru-out. 2 permitted additions for 5 bdrms & 3 full bthrms make this sprawling 2,500 SF home a rare find on a quiet cul-de-sac surrounded by long-term neighbours. The gourmet kitchen impresses w/ granite counters, breakfast bar, gas range, built-in drawer microwave, organizers & heated tile floors. Spa-style bthrms offer granite, dbl sinks, frameless showers & heated floors. The bright great room w/ skylights, clerestory windows & vaulted ceilings provides a bright & inviting hub for gatherings, while the adjacent dining area opens to a private deck w/ Fire Bowl & hot tub for outdoor entertaining. Retreat to your serene primary wing featuring a fireplace, jetted tub & W/I closet. BONUS 675 SF detached garage/workshop w/ 600 SF attic storage. Beautifully landscaped 9,500 SF lot & new roof just 1.5 yrs. Easy access to schools, commuter routes & amenities. OPEN HOUSE SUN OCT 26 2:00-4:00 (id:52823)
Open House
This property has open houses!
2:00 pm
Ends at:4:00 pm
Property Details
| MLS® Number | R3061027 |
| Property Type | Single Family |
| Neigbourhood | Sunshine Hills |
| Parking Space Total | 8 |
| View Type | View |
Building
| Bathroom Total | 3 |
| Bedrooms Total | 5 |
| Age | 55 Years |
| Appliances | Washer, Dryer, Refrigerator, Stove, Dishwasher, Hot Tub, Jetted Tub, Microwave |
| Architectural Style | Other, Ranch |
| Basement Development | Unknown |
| Basement Features | Unknown |
| Basement Type | None (unknown) |
| Construction Style Attachment | Detached |
| Fireplace Present | Yes |
| Fireplace Total | 1 |
| Fixture | Drapes/window Coverings |
| Heating Type | Forced Air |
| Size Interior | 2,518 Ft2 |
| Type | House |
| Utility Water | Municipal Water |
Parking
| Detached Garage | |
| Garage | |
| R V |
Land
| Acreage | No |
| Sewer | Sanitary Sewer |
| Size Irregular | 9560 |
| Size Total | 9560 Sqft |
| Size Total Text | 9560 Sqft |
Utilities
| Electricity | Available |
| Natural Gas | Available |
| Water | Available |
https://www.realtor.ca/real-estate/29020550/7388-112a-street-delta








































